Erich Prödl
Associates
Büro
Projektliste
Kontakt
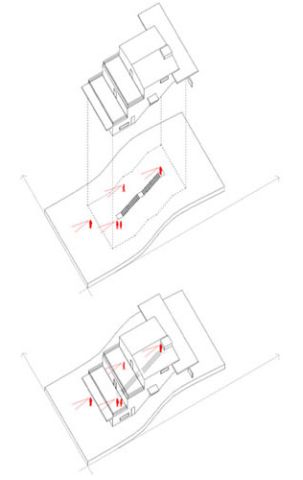
Haus B, Krumau am Kamp, 2004